L Konteyner Ev
₺275.000,00
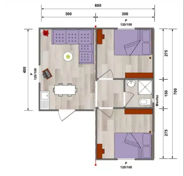
L Konteyner Ev Boyutları
KDV Dahil Fiyat
| Derinlik | 6m |
| Genişlik | 7m |
| Kullanım Alanı | 42m² |
| Kapalı Kullanım Alanı | 30m² |
| Verandalı Kullanım Alanı | 12m² |
- Fiyatlar Samsun için kurulumlarda geçerlidir. Şehir dışı kurulumlarda hizmet bedeli yansıtılacaktır.
- 1 Yıl İşçilik ve Montaj Hatalarına Karşı Garantili
- Knt Prefabrik fabrikasında üretim, hızlı teslimat
- Yüksek Tavan Yalıtımı
- Elektrik Tesisatı: İç glop, sigorta kutusu, priz ve anahtarlar takılmaktadır.
- Yaşam Konteyner İçin Sıhhi Tesisat: Borular, Klozet, Lavabo, Duş teknesi, takılmaktadır.
Açıklama
L konteyner ev malzemeleri
| BETOPAN | 14mm Alt Taban Betopan Kaplaması |
| SANDVİÇ PANEL | 40mm Sandviç Panel |
| MİNEFLO | 1-2mm Mineflo Yer Döşemesi |
| LAMBİRİ | 10mm Kalınlığında Pvc Lambiri |
| CAM YÜNÜ | 50mm Kalınlığında Cam Yünü |
| TRAPEZ SAÇ | 0,5mm Özel Profil Galvaniz Saç |
| DIŞ KAPI | 900x2000mm 40mm Kalınlığında Saç Kapı |
| İÇ KAPI | 800x2000mm Amerikan Pres Panel Kapı |
| KAPI KİLİDİ & KOLU | Kapı Kilidi ve Kapı Kolu |
| PENCERE | 100×120 Pvc Pencere |
| MENFEZ | 15×15 Menfez |
| İÇ GLOP | İç Aydınlatmalar |
| KABLOLAR | NYM 3×1,5 – 3×2,5mm² (TSE – ISO) Kablolar |
| NYM KABLO | 220 Volt Kapasiteli 1034 NYM Kablo |
| SİGORTA KUTUSU | TSE’li 2’li Kapak Sıva Üstü |
| PRİZ | TSE’li Sıva Üstü Priz |
| ANAHTAR | TSE’li Sıva Üstü Anahtar |
| BORULAR | Tesisat ve borular mevcuttur |
| KLOZET | Alafranga Klozet Seti |
| LAVABO | El yıkama lavabosu mevcuttur |
| DUŞ TEKNESİ | 70x70cm Duş Teknesi |
| MUSLUKLAR | Musluklar mevcuttur |
| MUTFAK EVYESİ | 100×50 Mutfak evyesi |
Diğer hazır konteyner modellerimizi görmek için tıklayın.
Değerlendirmeler (0)







Değerlendirmeler
Henüz değerlendirme yapılmadı.